Karachalios Architectural Studio
© 2024 Karachalios Architectural Studio, All Rights Reserved.
Κτιριακό Συγκρότημα πολλαπλών χρήσεων στο Δήμο Θεσσαλονίκης
Κτιριακό Συγκρότημα πολλαπλών χρήσεων στο Δήμο Θεσσαλονίκης
Ομάδα Μελέτης:
Αποστολίδης Κωνσταντίνος, αρχιτέκτων μηχανικός
Καραχάλιος Θανάσης, αρχιτέκτων μηχανικός
Καραχάλιος Σωτήρης, αρχιτέκτων μηχανικός
Μπελεμέζη Λουίζα-Μαρία, αρχιτέκτων μηχανικός
Σύμβουλος Μελέτης:
Μωραΐτης Κώστας, ομότιμος καθηγητής Ε.Μ.Π
Η αρχιτεκτονική πρόταση αφορά τη δημιουργία ενός πολυλειτουργικού συγκροτήματος που φιλοξενεί κρίσιμες κοινωνικές και δημοτικές υπηρεσίες. Ο σχεδιασμός του δεν περιορίζεται στη λειτουργικότητα· επιδιώκει να εκφράσει τη σύγχρονη δημόσια ταυτότητα του Δήμου Θεσσαλονίκης, προβάλλοντας αρχές διαφάνειας, προσβασιμότητας και ανοιχτού διαλόγου με την πόλη.
Τρεις βασικοί άξονες σύνθεσης:
- Πολλαπλά ισόγεια: Το φυσικό ανάγλυφο του οικοπέδου αξιοποιείται ώστε το κτίριο να προσφέρει πρόσβαση από διαφορετικά σημεία και υψόμετρα, ενισχύοντας την αμεσότητα επαφής με τον δημόσιο χώρο.
- Διαβαθμισμένη διαφάνεια: Η ιδέα της διαφάνειας ερμηνεύεται όχι μόνο ως οπτική, αλλά κυρίως ως χωρική: το κοινό μπορεί να διέρχεται μέσα από το κτίριο, βιώνοντάς το ως τμήμα του δημόσιου εδάφους.
- Προσιτή εσωτερικότητα: Αίθρια, εξωτερικές σκάλες και διαμπερείς χώροι δημιουργούν έναν “αρχιτεκτονικό περίπατο”, που ενισχύει την καθημερινή αλληλεπίδραση μεταξύ των χρηστών και των λειτουργιών.
Συσχέτιση με το αστικό τοπίο
Το συγκρότημα εντάσσεται οργανικά στο πολεοδομικό περιβάλλον και λειτουργεί ως επέκταση του δημόσιου χώρου της πόλης. Η αρχιτεκτονική του ενθαρρύνει τη συνάντηση, τη συμμετοχή και την αστική συνοχή, ενισχυμένη από στρατηγικά τοποθετημένα υπαίθρια σημεία στάσης και κίνησης.
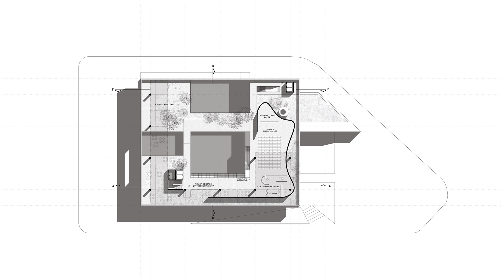
Λειτουργίες
Το κτίριο συγκεντρώνει πλήθος χρήσεων κοινωνικού και πολιτιστικού χαρακτήρα: Βρεφονηπιακός σταθμός, Κέντρο Ημερήσιας Φροντίδας Ηλικιωμένων, ΚΕΠ, Δημοτική βιβλιοθήκη και Αρχείο Προσφυγικής Τούμπας, Δημοτικό ιατρείο και γυμναστήριο, Ξενώνας φιλοξενίας, Υπαίθριος κινηματογράφος και φυτεμένο δώμα.
Βιοκλιματική στρατηγική
Ο σχεδιασμός αξιοποιεί παθητικά συστήματα αερισμού, φυσικό φωτισμό, σκίαση και εκτεταμένη φύτευση. Το δώμα λειτουργεί ως ενεργειακός ρυθμιστής, ενώ ο περιβάλλων χώρος ενισχύει το μικροκλίμα και την περιβαλλοντική βιωσιμότητα του έργου.
Η σύνθεση εστιάζει στην κοινωνική λειτουργία του δημόσιου κτιρίου ως ανοιχτό σύστημα ζωής, όπου ενσωματώνονται καθημερινές ανάγκες, συμβολισμοί και προσαρμοστικότητα. Επιτυγχάνεται έτσι μια χωρική πρόταση που δεν εξαντλείται στη μορφή, αλλά αποτελεί υπόβαθρο συλλογικής εμπειρίας και ταυτότητας για τους χρήστες και την πόλη.





















