Karachalios Architectural Studio
© 2024 Karachalios Architectural Studio, All Rights Reserved.
Πολυκατοικία στη Γλυφάδα
Πολυκατοικία στη Γλυφάδα
Ομάδα Μελέτης: Θανάσης Καραχάλιος | Σωτήρης Καραχάλιος
Χρόνος Κατασκευής: 2024 –
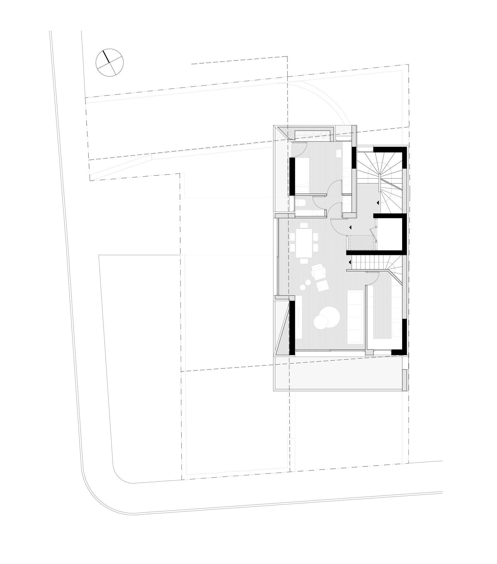
Η πρόταση αφορά τον σχεδιασμό πενταώροφης πολυκατοικίας με υπόγειο, pilotis και σοφίτα, σε οικόπεδο στη Γλυφάδα. Το κτήριο περιλαμβάνει τρεις ανεξάρτητες κατοικίες, διαμπερείς και ανεπτυγμένες σε δύο στάθμες.
Οι δύο πρώτες κατοικίες καταλαμβάνουν διαδοχικά τους ορόφους Α’-Β’ και Γ’-Δ’, με είσοδο από τον ανώτερο όροφο, όπου βρίσκονται οι χώροι διημέρευσης. Ο κατώτερος όροφος φιλοξενεί την ιδιωτική ζώνη με τρία υπνοδωμάτια και λουτρό. Η τρίτη κατοικία βρίσκεται στον Ε’ όροφο με υπνοδωμάτια εντός της σοφίτας και διημέρευση στο κάτω επίπεδο. Το υπόγειο περιλαμβάνει αποθήκες, Η/Μ εγκαταστάσεις και θέσεις στάθμευσης, ενώ το ισόγειο διαμορφώνεται ως pilotis, με επιπλέον στάθμευση και κοινόχρηστη είσοδο μέσω ράμπας. Ο περιβάλλων χώρος λειτουργεί ως ενιαίος κήπος με εκτεταμένες φυτεύσεις.
Το κτήριο οργανώνεται κατά μήκος του άξονα βορράς – νότος του γηπέδου με ένα αυστηρό και λιτό, γεωμετρικό πρίσμα, το οποίο αποτελεί και τη βάση οργάνωσης του θέματος. Η πρόταση προσαρμόζεται μέσα στις απόλυτες και ασφυκτικές οικοδομικές γραμμές και συμπληρώνεται με επιμέρους επεξεργασίες (εσοχές και προεξοχές του πρίσματος) που επιχειρούν να συσχετιστούν με τον ιδιόμορφο αστικό περίγυρο. Η σύνθεση συγκροτείται μέσα από βασικά συνθετικά αρχιτεκτονικά δίπολα (κενό – πλήρες, ανοιχτό – κλειστό, ψηλό – κοντό) που εμπλουτίζουν σε κάτοψη και τομή την οργάνωση ενός τυπικού ορόφου.
Γενικά, η βάση οργάνωσης της τυπικής κατοικίας αναπτύσσεται σε ένα ανισοσκελές Γ γύρω από τον χώρο του κεντρικού κοινόχρηστου κλιμακοστασίου που τοποθετείται στην εσωτερική γωνία, την “πλάτη” του κτιρίου (βορειοανατολική πλευρά). Οι χώροι – μονάδας δωματίου – οργανώνονται εν σειρά πάνω σε αυτή τη διάταξη, και ανάλογα τον όροφο κλείνουν και γίνονται δωμάτια (Α’, Γ’, Σοφίτα) ή παραμένουν ανοιχτοί και ευρύτεροι ώστε να καλύψουν τις ανάγκες των χρηστών.
Ο πεζόδρομος από τον δρόμο έως το κλιμακοστάσιο πλαισιώνεται από φυτεύσεις που εξομαλύνουν τη μετάβαση από τον δημόσιο στον ιδιωτικό χώρο. Το σύστημα κατακόρυφης κυκλοφορίας — από το ισόγειο έως το δώμα — αναδεικνύεται σε βασικό συνθετικό στοιχείο, καθορίζοντας τη διαμόρφωση της κάτοψης και κυρίως της τομής. Στην αρχιτεκτονική αυτή λογική εντάσσονται και οι εσωτερικές σκάλες των κατοικιών, ενισχύοντας τη λειτουργική συνοχή.



















