Συγκρότημα πολυκατοικιών στην Πεύκη

Συγκρότημα πολυκατοικιών στην Πεύκη

Συγκρότημα πολυκατοικιών στην Πεύκη

Ομάδα Μελέτης: Θανάσης Καραχάλιος | Σωτήρης Καραχάλιος

Χρόνος Μελέτης: 2020–2022

Η αρχιτεκτονική μελέτη αφορά συγκρότημα πολυκατοικιών στην Πεύκη και βασίζεται στην επανερμηνεία της τυπικής πολυκατοικίας μέσα από ένα ενιαίο συνθετικό πλαίσιο που αποσκοπεί στην ενοποίηση μορφής και λειτουργίας. Βασικό εργαλείο της σύνθεσης αποτελεί η τριμερής άρθρωση των όγκων σε pilotis – πρίσμα – στέψη, όπου η βάση, ο κορμός και η στέψη κάθε κτιρίου αποκτούν διακριτή αλλά οργανικά συνδεδεμένη υπόσταση.


Στο επίπεδο του pilotis, ο κοινόχρηστος υπαίθριος χώρος λειτουργεί ως ενδιάμεσος μεταξύ του δημόσιου και του ιδιωτικού, ένας ελεύθερος κήπος με φυτεύσεις και ήπιες διαδρομές που ενισχύει την κοινωνικότητα των κατοίκων. Ο κορμός των κτιρίων διαμορφώνεται ως γεωμετρικά καθαρό πρίσμα, μέσα στο οποίο εναλλάσσονται διαμερίσματα ενός ή δύο επιπέδων, σε διάταξη που παράγει ποικιλία κατόψεων και όψεων, αλλά διατηρεί την ενότητα του συνόλου. Η στέψη – ως απομειωμένη πλάκα και πέργκολα – ολοκληρώνει τη σύνθεση με ελαφρότητα, παρέχοντας υπαίθριους χώρους εκτόνωσης και ενεργειακό εξοπλισμό ενταγμένο στη μορφή.

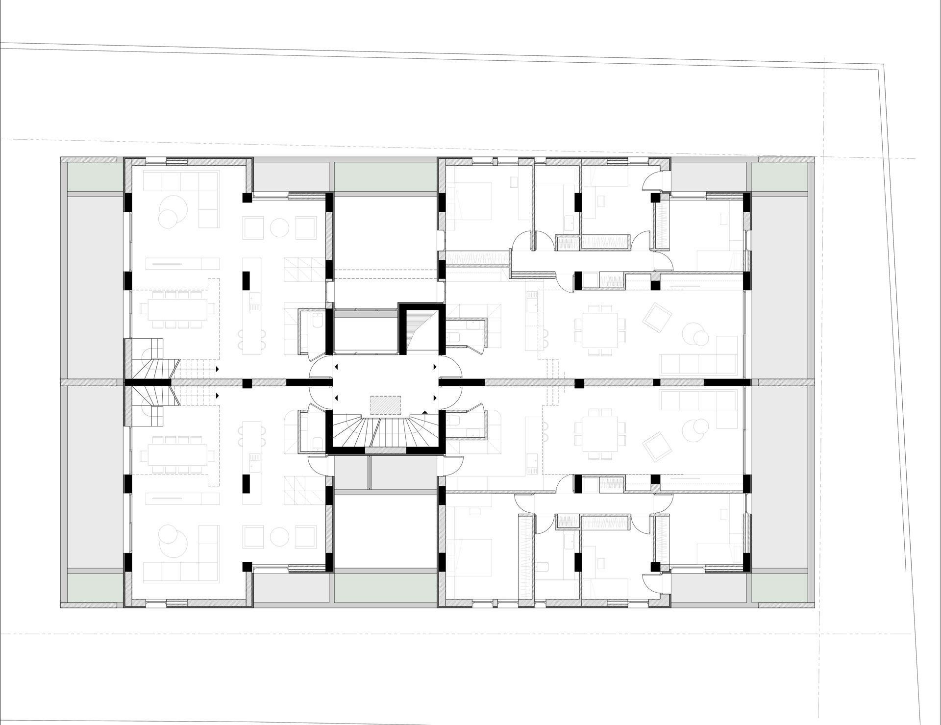
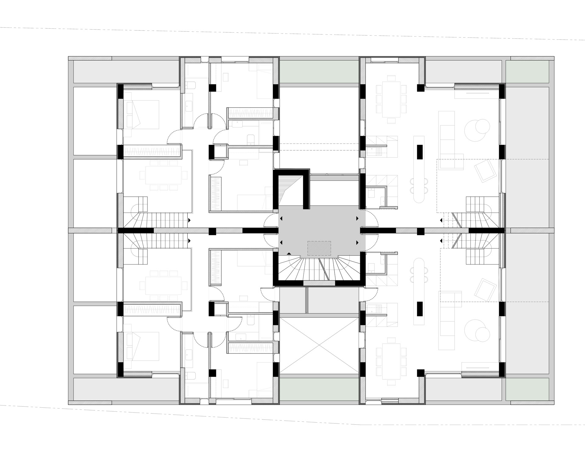
Το κτιριολογικό πρόγραμμα περιλαμβάνει συνολικά 20 κατοικίες – δέκα σε κάθε κτίριο – οι οποίες κατανέμονται σε 14 μεζονέτες (σε δύο επίπεδα) και 6 μονώροφες κατοικίες. Η τυπική κάτοψη οργανώνεται με κατακόρυφο πυρήνα κίνησης στο κέντρο και τις κατοικίες εκατέρωθεν, σε ανατολική και δυτική πτέρυγα, εξασφαλίζοντας ιδανικό ηλιασμό και διαμπερότητα. Τα διαμερίσματα εκτείνονται από το ισόγειο έως και τη σοφίτα, ενώ η δυνατότητα κατακόρυφης ανάπτυξης επιτρέπει σε πολλές κατοικίες την εκμετάλλευση παταριών και δωμάτων ως ιδιωτικών υπαίθριων χώρων ή επιπλέον λειτουργικών ζωνών.

Συνθετικά, η πρόταση αρθρώνεται γύρω από έναν κατακόρυφο πυρήνα κίνησης σε κάθε κτίριο, με τις κατοικίες να διατάσσονται εκατέρωθεν σε δύο ζώνες, ανατολικά και δυτικά. Η παρουσία διερχόμενων αιθρίων και αισθητικών “γεφυρών” λειτουργεί ως buffer ζώνη και ενισχύει την εμπειρία του ενδιάμεσου χώρου, φωτίζοντας και αερίζοντας φυσικά τα εσωτερικά.


Οι ανατολικές και δυτικές όψεις αποκτούν ιδιαίτερο αρχιτεκτονικό βάρος, μέσα από ένα ενεργειακό πλέγμα ημιυπαίθριων χώρων και σκίαστρων, που φιλτράρουν το φως και ενορχηστρώνουν τις όψεις ως κατακόρυφες συνθέσεις. Αντίθετα, οι βόρειες και νότιες όψεις αναπτύσσονται ως οριζόντια πρίσματα, όπου τα έρκερ λειτουργούν σαν κινητά στοιχεία σε κάθε όροφο, αποτυπώνοντας εσωτερικές ανάγκες και προσδίδοντας ρυθμό και βάθος στις όψεις.

Η αρχιτεκτονική ιδέα επιδιώκει την συνθετική ένταση μεταξύ συμμετρίας και μετατόπισης, πλήρους και κενού, φωτός και σκιάς. Το παιχνίδι αυτό δεν αφορά μόνο την εικόνα, αλλά αντανακλά μια λειτουργική ευελιξία και χωρική ποιότητα που προσαρμόζεται στις ανάγκες των σύγχρονων κατοίκων.